Huis Hoge Buizemont 106 9500 Geraardsbergen
€ 149.000
- Referentie:
- 7193642
- Adres
- Hoge Buizemont 106 , 9500 Geraardsbergen
- Type
- huis
- Slaapkamers
- 3
- Badkamers
- 1
- Grootte perceel
- 134m2
- Bewoonbare oppervlakte
- 124m2
- EPC
- 181 KwH/m2/j (B)
Huis Hoge Buizemont 106 9500 Geraardsbergen
€ 149.000
- Referentie:
- 7193642
- Adres
- Hoge Buizemont 106 , 9500 Geraardsbergen
- Type
- huis
- Slaapkamers
- 3
- Badkamers
- 1
- Grootte perceel
- 134m2
- Bewoonbare oppervlakte
- 124m2
- EPC
- 181 KwH/m2/j (B)
GEZELLIGE ***ENERGIEZUINIGE (level B)*** EENGEZINSWONING MET DAKTERRAS.
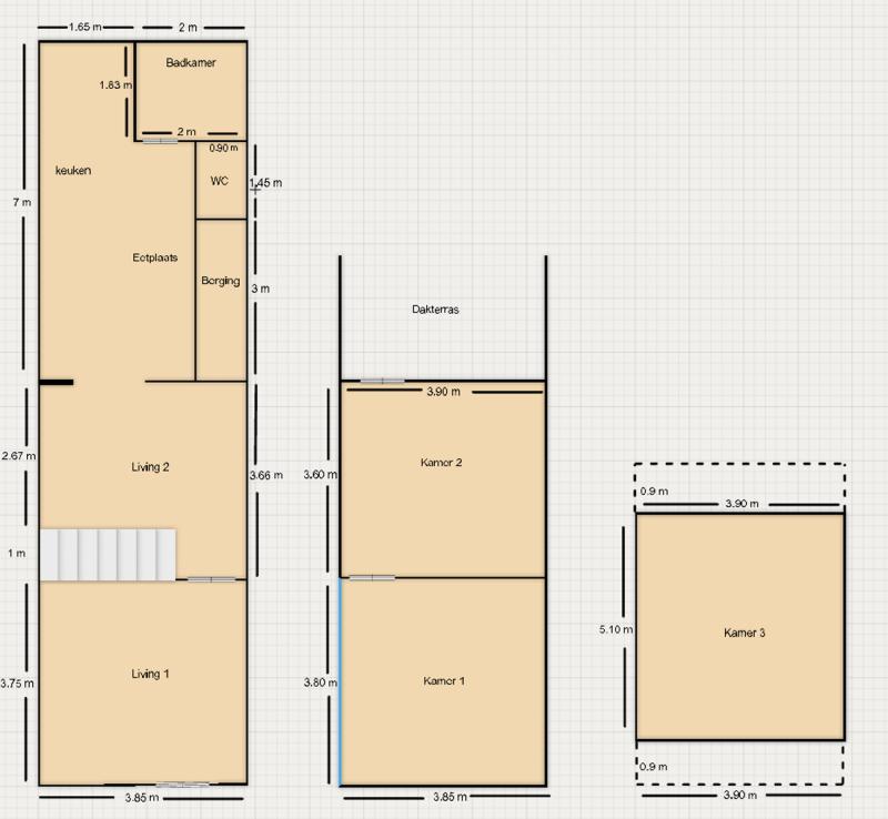
Aan de bovenste stadsrand van Geraardsbergen vind je deze OP TE FRISSEN woning. Een stevig gesloten bebouwing met 3 bouwlagen. Door langdurig verhuren is er wat slijtage opgetreden maar de woning heeft wel een optimaal EPC niveau B onder meer door de gedeeltelijke vloerverwarming in keuken en eetplaats. De woning beschikt wel over een geldig CONFORMITEITSATTEST VERHUUR en een conform ELEK attest. Verbeteringswerken zijn nodig aan de gaswandketel, licht vochtproblematiek en in latere fase eventueel het asbestdak vernieuwen. INDELING : gelijkvloers met voorplaats, eetplaats en keuken. Zijdelings de badkamer en berging/stookruimte. Eerste met twee zeer ruime slaapkamers waarvan de achterste toegang heeft tot het dakterras. Vaste trap naar zolderruimte die knap omgebouwd werd tot een derde slaapkamer met inmaakkasten. De ideale STARTERS- of INVESTERINGSWONING aan zeer correcte en nog onderhandelbare prijs. Vraag snel uw individueel bezoek aan met vastgoedmakelaar Cedric via telefoon op kantoor 054 41 25 00.
Technisch
Slaapkamers | 3 |
Badkamers | 1 |
Terras 1 | 30m2 |
Aantal parking binnen | 0 |
Aantal parking buiten | 0 |
Aantal garages | 0 |
Toiletten - aantal | 1 |
Slaapkamer 1 | 15m2 |
Slaapkamer 2 | 14m2 |
Slaapkamer 3 | 20m2 |
Type verwarming | Vloerverwarming gedeeltelijk - Gas cv |
Lift | |
Dubbele beglazing | |
Badkamer | Douche |
Bouwjaar | 1950 |
Renovatie - jaar | 2018 |
Type dak - type | Zadeldak |
Type schrijnwerkerij | Pvc |
Kelder |
Cijfers buiten
Grootte perceel | 134m2 |
Oppervlakte | 124m2 |
Gevelbreedte - breedte | 4,00m |
Kadaster
Kadastraal inkomen (€) - bedrag | € 332 |
Kadaster - sectie | B |
Kadaster - nr. | 1180DP0000 |
Kadaster - opp. (ha/a/ca) | 70ca |
Juridisch
Bestemming gebouw - type | Privé - eengezins |
EPC | 181 KwH/m2/j B |
Wettelijke vastgoed info
waterinfo |
kadastrale legger |
Kadastraal plan |
CA |
Bodemattest |
rooilijnplan |
stedenbouw |
Plan |
EPC |
EK |